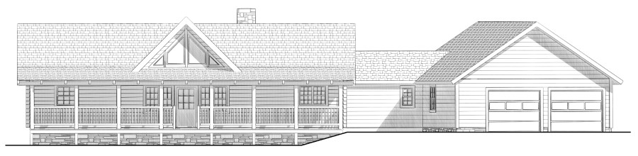
Plan Specifics
|
4 Bedrooms 2 Baths 1 Half Bath |
|
1,402 SF Main Level 1,276 SF Optional Basement 1,402 SF Heated 828 SF Porch / Deck 884 SF Garage |
|
Collection: Classic Plans Style: Ranch Type: Single Level Family: Chapparal |
|
|
Build this Home Plan
Home Design Services
Log Homes
Hybrid Homes
Timber Frame Homes
Let’s discuss your project in detail. Call today at (800) 970-2224.
Plan Details: Chapparal 3
Related Plan(s) based on matches in Plan:
- Square Foot Range
- Collection
- Style
- Type














