Plan Specifics
|
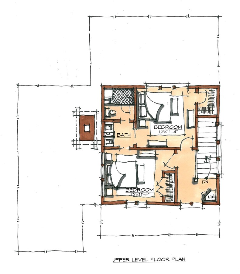
3 Bedrooms 2 Baths 1 Half Bath |
|
1,125 SF Main Level 500 SF Upper Level 1,625 SF Heated 641 SF Porch / Deck |
|
Collection: Jewel Box Cabins Style: Cottage Type: Two-story |
|
|
Build this Home Plan
Home Design Services
Log Homes
Hybrid Homes
Timber Frame Homes
Let’s discuss your project in detail. Call today at (800) 970-2224.
Plan Details: John Brown Camp
Related Plan(s) based on matches in Plan:
- Square Foot Range
- Collection
- Style
- Type















